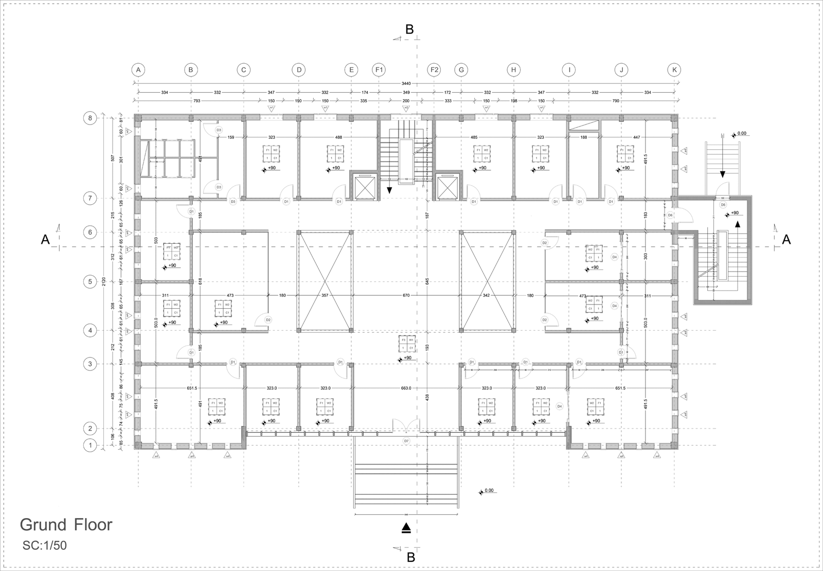
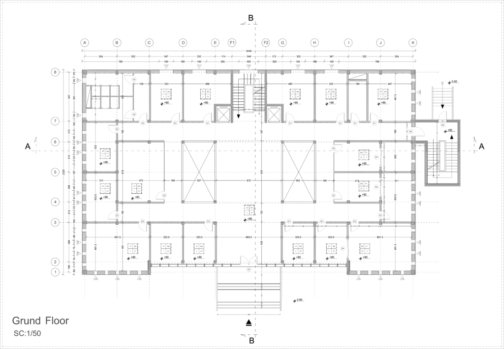
Das ARFADA Office Building verkörpert eine neue Ära der Unternehmensarchitektur. Sein modernes Design, geprägt durch die Fassadenstruktur und die expansive Glasfront, schafft ein Statement für Präzision und Innovation. Das Konzept maximiert natürliches Licht und fördert eine dynamische Arbeitsumgebung, die Effizienz und das Wohlbefinden der Mitarbeiter steigert.
Ort : Dubai, UAE -
Fläche : Ca. 3.900 m² (5 Etagen * 780 m² pro Etage) -
Typologie : Hochmodernes Bürogebäude und Firmenzentrale